Our Work

MECHANICAL

The office building project, Mechanical Duct modeling of the project families and mechanical equipment are placed.

ELECTRICAL

Elecrical Revit Model having Electrical Fixture Conduits & Telecommunication Model

PLUMBING FIRE PROTECTION

This is one of the factory project in which we have worked on plumbing & fire protection modeling. This project is related to mechanical piping, sanitary, vent, storm. Fixturesare placed well and co-ordination with structure architecture & Other trades.

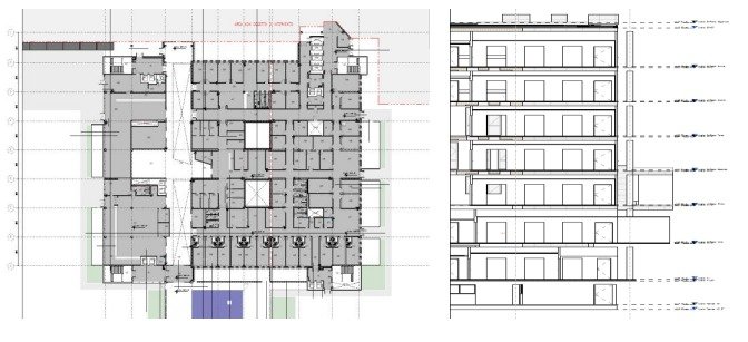
ARCHITECTURE

3D Model, Section and Overhead drawings with Annotations.

STRUCTURE

3D Model, Section and Overhead drawings with Annotations.